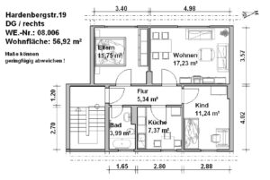
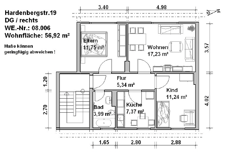
Diese Wohnung wird Sie sicherlich überzeugen:
- geflieste Badezimmer mit Wanne und Fenster
- geräumige Wohnküche
- Gartenbenutzung
- Laminat
- großzügiger Balkon wird bald angebaut
- Fahrradkeller sowie Trockenräume verfügbar
- Wasserzähler vorhanden, welche Ihnen eine genaue Abrechnung garantiert
- Kellerraum verfügbar