PreisTipp! familiengerecht! WBS

ID: 1317
Ortsangaben
Ort
32425 Minden
Adresse
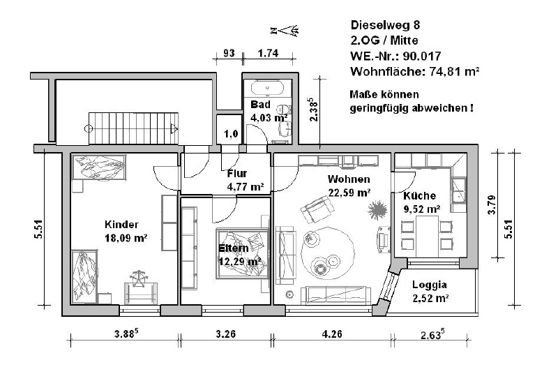
Dieselweg 8
Flächen
Wohnfläche
ca. 75 m²
Anzahl Zimmer
3
Preisangaben
Kaltmiete (netto)
599 €
Warmmiete
779 €
Nebenkosten
180 €
Heizkosten
in Nebenkosten enthalten
Heizkosten
55 €
Bezugsfrei ab
01.08.2025
Kaution
1.095 €
Zustandsangaben
Baujahr
1974
Gebäudetyp
Neubau

Ausstattung

Die familienfreundliche 3 Zimmer-Wohnung bietet genug Platz für Ihre Bedürfnisse. Vom Wohnzimmer geht es auf die Loggia in Westrichtung. Die Küche ist großzügig geschnitten und bietet Ihnen Platz für einen Essbereich.

- die sonnige Loggia sorgt für einen gehobenen Wohnstandard
- die Wohnräume sind mit Laminat ausgestattet
- Badezimmer mit Badewanne
- Abstellraum innerhalb der Wohnung
- es besteht die Möglichkeit einen Kellerraum zusätzlich anzumieten
- Waschkeller, Trockenraum sowie ein Fahrradkeller stehen im Kellergeschoss zur Verfügung

Kunststoff
Ja
Garten
Ja
Keller
Ja

Objektbeschreibung

Die Wohnung befindet sich in der 2. Etage und ist mit einer Loggia in Westrichtung ausgestattet. Das Mehrfamilienhaus ist auf Grund der Lage und des gerringen Mietpreises ideal für Familien. Die großzügig geschnittene Wohnung ist komplett nach Süd-Westen mit großen Fenstern ausgerichtet. Das suggeriert in den Wintermonaten eine helle und warme Wohnung und in den Sommermonaten Entspannung. Ferner sind alle Fenster mit Rollläden ausgestattet, die zusätzlich vor Sonne und ungewollten Blicken schützen.

Zur Anmietung dieser preisgünstigen Wohnung benötigen Sie einen Wohnberechtigungsschein, den Sie bei der Stadt Minden beantragen können.

Energie & Heizung

Baujahr laut Energieausweis1974
Energie­ausweistypBedarfsausweis
Endenergiebedarf205 kWh/(m²·a)
HeizungsartZentralheizung
EnergieträgerÖl

Weitere Beschreibung

Energiekennwert: 205 kWh/(m²*a)
Energieausweistyp: Bedarfsausweis
Befeuerung/Energieträger: Öl
Baujahr: 1974
Heizungsart: Zentralheizung
Energieeffizienzklasse: E

Wir bieten Ihnen zusätzlich:
- Hausmeisterservice
- Unser Notdienst: Erreichbarkeit 365 Tage im Jahr, rund um die Uhr! Auf uns können Sie zählen!

Die Kaution beträgt 3 Nettokaltmieten.
Tierhaltung ist nach Absprache gestattet.

Ein Besichtigungstermin kann individuell unter (0571) 8885 595 vereinbart werden - oder Sie besuchen uns in unseren Geschäftsräumen in der Hahler Str. 34, 32427 Minden - setzen Sie sich auch gerne wegen weiterer Angebote mit uns in Verbindung!
Unsere Geschäftszeiten sind täglich von 9-18 Uhr, freitags von 9-14 Uhr und samstags von 10-15 Uhr.

Unsere aktuellen Angebote finden Sie auch unter www.Wohnhaus-Minden.de
Klicken Sie mal rein!

Your browser doesn't have a PDF plugin installed. Click here to download the PDF file.

Vermietungshotline

Montag – Donnerstag:
– 10.00 – 12.30 Uhr
– 13.30 – 18.00 Uhr
Freitag: 10.00 – 14.00 Uhr
Termine auch außerhalb der Öffnungszeiten nach Vereinbarung

Lage

Der Dieselweg liegt am nördlichen Grüngürtel der Stadt Nahe des Melittabads.

- der nächste Supermarkt ist in ca. 200m
- ein Kindergarten befindet sich nur eine Straße in ca 100m
- ein Café in ca. 200m
- eine Bushaltestelle ist in 2 Minuten zu Fuß zu erreichen
- Innenstadt erreichen Sie in ca. 3km

Genießen Sie die Ruhe beim Spaziergehen am nahegelegenen Mittellandkanal.