Modernisierung 2008

ID: 375
Ortsangaben
Ort
32427 Minden
Adresse
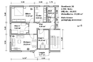
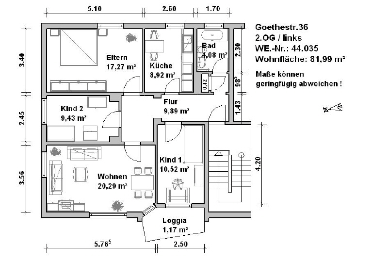
Goethestr. 36
Flächen
Wohnfläche
ca. 81,99 m²
Anzahl Zimmer
4
Preisangaben
Kaltmiete (netto)
699 €
Warmmiete
874 €
Nebenkosten
145 €
Heizkosten
in Nebenkosten enthalten
Heizkosten
40 €
Bezugsfrei ab
01.11.2025
Zustandsangaben
Baujahr
1957
Gebäudetyp
Neubau

Ausstattung

Die Wohnung ist mit einem gefliesten Duschbad, Balkon und Laminatfußboden ausgestattet. Die Übergabe erfolgt im tapezierten Zustand. Ein Kellerraum kann selbstverständlich auch mit angemietet werden.

Laminat
Ja
Kunststoff
Ja
Garten
Ja
Keller
Ja

Objektbeschreibung

Die Wohnung befindet sich im 2. Obergeschoss und ist mit einem Westbalkon ausgestattet. Sie wurde im Jahre 2008 komplett modernisiert. Technisch wurde alles auf den neusten Stand gebracht. So wurde das Badezimmer neu verfliest und eine Dusche eingebaut und hochwertiger Belag auf den Boden gebracht. Hier können Sie sich richtig wohlfühlen.

Energie & Heizung

Baujahr laut Energieausweis1957
Energie­ausweistypBedarfsausweis
HeizungsartZentralheizung
EnergieträgerGas

Weitere Beschreibung

Baujahr: 1957
Heizungsart: Zentralheizung

Bitte geben Sie uns bei Kontaktaufnahme per E-Mail Ihre Rufnummer (tagsüber) mit an. Weitere Immobilienangebote bekommen Sie von uns gerne auf Anfrage. Diese finden Sie ebenfalls auf unserer Homepage unter der folgenden Adresse.
www.wohnhaus-minden.de Klicken Sie unbedingt mal rein.

Sie bekommen von uns zusätzlich einen technischen Notdienst während der Mietzeit - Diesen erreichen Sie an 365 Tagen rund um die Uhr.

Die Kaution beträgt bei Wohnungsvermietungen 3 Kaltmieten.
Grundsätzlich sind Ihre Tiere herzlich willkommen. Die Tierhaltung ist jedoch im Sinne einer guten Nachbarschaft genehmigungspflichtig.

Ihr Besichtigungserlebnis kann individuell unter (0571) 888 511 vereinbart werden - oder Sie besuchen uns in unseren Geschäftsräumen in der Hahler Str. 34, 32427 Minden. Dort erhalten Sie auch jederzeit weitere Angebote von uns.

Unsere Geschäftszeiten sind täglich von 10-12:30 / 13:30-18 Uhr, freitags von 10-14 Uhr und samstags nach Absprache.

Your browser doesn't have a PDF plugin installed. Click here to download the PDF file.

Vermietungshotline

Montag – Donnerstag:
– 10.00 – 12.30 Uhr
– 13.30 – 18.00 Uhr
Freitag: 10.00 – 14.00 Uhr
Termine auch außerhalb der Öffnungszeiten nach Vereinbarung

Lage

Dieses großzügige Mehrfamilienhaus steht in verkehrsgünstiger Lage. So haben Sie eine prima Verkehrsanbindung ins Zentrum. Die nur 2 km entfernte Mindener Innenstadt ist bequem auch mit dem Fahrrad oder über die gute Busanbindung zu erreichen. Auch ein Ärztehaus und ein Einkaufszentrum liegen in unmittelbarer Nähe.