4-Zimmer-Wohnung mit Balkon

ID: 2448
Ortsangaben
Ort
32427 Minden
Adresse
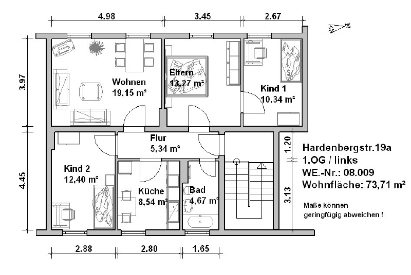
Hardenbergstr. 19a
Flächen
Wohnfläche
ca. 73,74 m²
Anzahl Zimmer
4
Preisangaben
Kaltmiete (netto)
1.099 €
Warmmiete
954 €
Nebenkosten
105 €
Bezugsfrei ab
01.03.2025
Kaution
3.297 €
Zustandsangaben
Baujahr
1950
Gebäudetyp
Neubau

Ausstattung

Diese Wohnung wird Sie sicherlich überzeugen:

- geflieste Badezimmer mit Wanne und Fenster
- geräumige Wohnküche
- Gartenbenutzung
- Laminat
- großzügiger Balkon wird bald angebaut
- Fahrradkeller sowie Trockenräume verfügbar
- Wasserzähler vorhanden, welche Ihnen eine genaue Abrechnung garantiert
- Kellerraum verfügbar

Kunststoff
Ja
Garten
Ja
Keller
Ja

Objektbeschreibung

Die Wohnung im 1. Obergeschoss verfügt über eine große helle Wohnküche die nach Süden ausgerichtet ist. Hier können nach Herzenslust Gäste bewirtet werden. Das schöne und hell geflieste Wannenbad, lädt zu Entspannungsbädern ein. Ein schöner Ort, um den anstrengenden Tag ausklingen zu lassen.

Im Inserat befinden sich Beispielfotos

Energie & Heizung

Baujahr laut Energieausweis1950
Energie­ausweistypBedarfsausweis
HeizungsartEtagenheizung
EnergieträgerGas

Weitere Beschreibung

Baujahr: 1950
Heizungsart: Etagenheizung

Wir bieten Ihnen zusätzlich:
- Hausmeisterservice
- Unser Notdienst: Erreichbarkeit 365 Tage im Jahr, rund um die Uhr! Auf uns können Sie zählen!
- Optional: Stellplatz 29 EUR mit Bügel oder hinter Schranke für 39 EUR
- Kellerraum für 25 EUR monatlich

Die Kaution beträgt 3 Nettokaltmieten.

Ein Besichtigungstermin kann individuell unter (0571) 8885 522 vereinbart werden - oder Sie besuchen uns in unseren Geschäftsräumen in der Hahler Str. 34, 32427 Minden - setzen Sie sich auch gerne wegen weiterer Angebote mit uns in Verbindung!
Unsere Geschäftszeiten sind täglich von 10-12:30 /13:30-18 Uhr, freitags von 10-14 Uhr

Unsere aktuellen Angebote finden Sie auch unter www.Wohnhaus-Minden.de
Klicken Sie mal rein!

Your browser doesn't have a PDF plugin installed. Click here to download the PDF file.

Vermietungshotline

Montag – Donnerstag:
– 10.00 – 12.30 Uhr
– 13.30 – 18.00 Uhr
Freitag: 10.00 – 14.00 Uhr
Termine auch außerhalb der Öffnungszeiten nach Vereinbarung

Lage

Idyllisch im Stadtbereich Mindens, innerhalb der Ringstraße und direkt an den Botanischen Garten angrenzend gelegen. Nur wenige Gehminuten entfernt befindet sich die Altstadt Mindens. Zudem hat man direkten Anschluss an die öffentlichen Verkehrsmittel.
Ganz neu und direkt gegenüber ist das neue Einkaufszentrum an der Ringstraße, um den WEZ, den DM-Drogeriemarkt und eine Apotheke.

Des weiteren gibt es in unmittelbarer Nähe:

- einen Bio-Markt ca. 50 m
- Friseur ca. 300 m
- Schule (Herder-Gymnasium) ca. 400 m
- Kindergarten ca. 200 m
- Fahrschule ca. 200 m
- Restaurants ca. 400 m

und vieles mehr.